Triton 1060 Handy

empfohlene Belegung: 4 Personen
reguläre Belegung: 4 Personen
maximale Belegung: 6 Personen
Anzahl Kabinen: 2
Anzahl WCs: 1
Anzahl Duschen: 1Rollstuhlgerechtes Boot
Bitte kontaktieren Sie uns für weitere Informationen, Buchungswünsche oder ein detailliertes Angebot.
Die Preisliste für dieses Boot können Sie hier einsehen und downloaden.
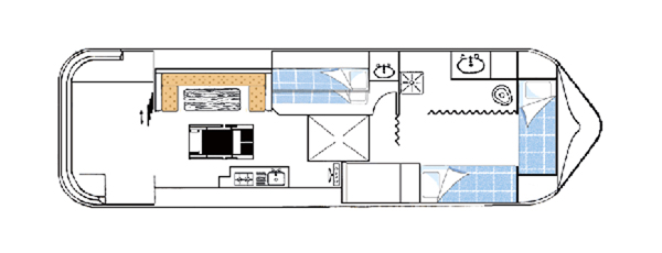
Die Triton 1060 Handy bietet Platz für zwei Rollstuhlfahrer und bis zu vier Mitreisende. Das Boot verfügt über zwei Kabinen, wovon die vordere mit zwei behindertengerechten Einzelbetten und die mittlere mit zwei Stockbetten ausgestattet ist. Zwei weitere Schlafplätze können bei Bedarf durch Umwandlung der Sitzecke in ein Doppelbett im Salon geschaffen werden. Das für Rollstuhlfahrer eingerichtete Badezimmer mit Dusche, WC und Waschbecken schließt sich unmittelbar an die vordere Kabine an und ist durch einen Vorhang abgetrennt. Im Bootsheck befindet sich der Salon mit Küche, Essbereich und Führerstand. Von hier aus gelangt man über eine verglaste Schiebetür auf die Terrasse mit Sonnensegel. Der Zugang zum Boot mit dem Rollstuhl erfolgt mit Hilfe einer mechanischen Seilwinde am Heck.
- Kabine vorn mit 2 behindertengerechten Einzelbetten
- Kabine in der Mitte mit 2 übereinander liegenden Einzelbetten
- für Rollstuhlfahrer eingerichtetes Badezimmer mit WC, Dusche und Waschbecken
- Salon/Küche mit Essecke (Umbaumöglichkeit zu Doppelbett) und Führerstand
- verglaste Schiebetür zur Terrasse im Heck
empfohlene Belegung:Maximal 2 Personen pro Kabine, keine Nutzung zusätzlicher Schlafplätze im Salon
reguläre Belegung:Maximale Belegung aller Betten in den Kabinen, keine Nutzung zusätzlicher Schlafplätze im Salon
maximale Belegung:Maximale Belegung aller Betten in den Kabinen sowie Nutzung der zusätzlichen Schlafplätze im Salon
→ Boot Triton 1060 Handy jetzt anfragen ←


Was bedeuten die Belegungsarten?